+420 602 167 046
pavla.kropacova@komfort.cz

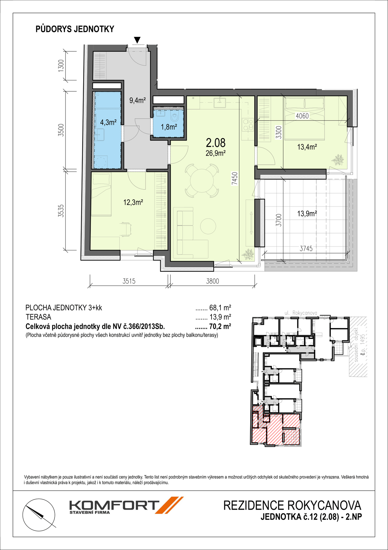
Byt 2.08

Vlastnosti bytu


Dostupnost prodaný
Podlaží 2.NP
Část V
Katastrální číslo 12
Číslo jednotky 2.08
Dispozice 3+kk
Užitná plocha 68,1 m2
Sklep -
Zahrada -
Terasa/balkon 13,9 m2
Celková plocha jednotky 82,0 m2
Celková plocha jednotky dle zákona č. 89/2012 70,2 m2
Prodejní cena -
Karta jednotky
Lokalita stavby
Kontaktujte nás

Investor:

Rezidence Rokycanova, s.r.o.

IČ: 048 97 803

 

Zhotovitel stavby:

KOMFORT,a.s.

Křenová 478/72 / 602 00 Brno

IČ: 255 24 241

 

Kontakty na prodejce:

Pavla Kropáčová

Křenová 478/72 / 602 00 Brno

 

pavla.kropacova(zavináč)komfort(tečka)cz

+420 602 167 046

+420 543 235 507